比邻国展中心,徽系高雅开启国风新时代!

“一生痴绝处,无梦到徽州”。
——汤显祖
把我们带到了那个神秘而美丽的地方,恬静与悠然,仿若那独遗世外的“桃花源”。

徽州文化是一个极具地方特色的区域文化,其内容广博而深邃。

业主是位非常热爱家乡徽州的商人,希望能把家乡特色带入酒店、带入国家会展中心、传承传播中国徽州文化。
设计师是为空间的使用者、经营者,融入情感,赋予空间生命的“造梦师”。
UOWAIN由问设计团队在倾听了业主对家乡徽州深厚的情感,对中国文化的深深热爱之后,产生共鸣带着感动,决定为业主倾力“造梦”。


酒店位于上海青浦区徐民路308弄103号,私享上海国家会展中心和虹桥国际机场周边资源。如何在国际化都市的窗口,以现代视角的设计语言为基础,将非常有底蕴,广博与深邃的徽州文化完美连接融合。国际化酒店构建写意徽州于东方的新范本,是本案面临的最大挑战。

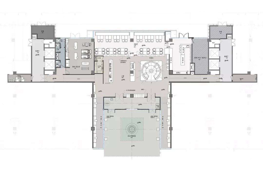
同时酒店入口隐逸在两栋商业建筑中间相连处的内凹空间内。设计师因地制宜将四水归堂庭院构想引入,设计两侧各20米长的展示柜,使得原先的灰空间马上有了色彩。促成了一个有焦点的酒店庭院入口,带入文化气息。

一宅隐天地,心境自超然。两侧通透的书吧和文化展品展示的围合,方寸之间尽显空间的底蕴文化及艺术表达。


酒店在不同层次的设计上灵活运用了徽州文化的核心特点来汲取神韵气质,结合空间的整体系列性,将文化元素渗透到每一个细节中,将经典重现。营造极具东方美学观感的艺术空间。



传统与现代的融合变通,通过汲取传统徽派的木构斗拱、瓦片、留白的山墙和民居的水墨意境,运用新的材料进行演绎,如水磨石的地面、背景墙艺术图案结合金属网、半透的夹丝玻璃、黑色的金属构建。以写意的方式提取徽州的意境,延续徽派建筑的黑白两色,再点以中国传统色系软装搭配,表达了设计对传统的回归和未来的展望。


酒店大堂与早餐厅采用层层递进布局,大堂休息区通过金属构建重新构筑,再现传统斗拱的形式。解读传统神韵,并结合当代风骨。



座位区核心采用了现代雕塑感强的壁炉,来取代传统围炉形式,搭配围合的浪漫如烟的水鸭蓝色沙发组,治愈系的teal色会让人心旷神怡,仿佛置身于美丽的湖泊。使空间在传达东方语境的基础上兼具现代高端品质。

休息区地毯图案取意于江南水墨画,如水纹般的艺术地毯,尽显东方哲学。融合整体的灰色调色彩的点缀呈现品质感。

通过软性隔断柜功能上隔而不断,构筑了早餐厅与大堂空间的渗透。餐厅延续东方意境的氛围,通过中国传统色系的高品质家具、鸟笼造型的吊灯设计及温润细腻的木饰面运用,呈现了诗意的婉约气质,连结了传统与现代。同时备餐区使用故宫红基调的墙面与圆镜柜造型让传统与现代映月相生。




就餐区大面积的通透落地窗,增加室内外的环境渗透,将室外的自然意境与室内的文化雅韵相融合,与暖意的灯光相呼应,让时光在宁静中悠然定格。

电梯厅的设计,以大块面材料分割,搭配间接光源的氛围渲染,简练的线条,点缀圆形明镜壁饰,颇具”明镜本清净,何处染尘埃”的空间气质。将现代时尚感融入东方美学空间之中。



效果图高还原度呈现
TECHNICAL DRAWINGS






UOWAIN由问设计团队通过对传统与现代结合,含蓄与精致并存,两种不同意境相映成辉,从文化底蕴、材料、软装色彩......去推敲空间的序列,实现了酒店的魅力。既体现出人们对当代艺术与文化的追求,又勾勒出东方意境的沉稳静谧。
项目名称 | 上海国展中心CRYSTAL ORANGE HOTEL
项目面积 | 4600㎡
开发业主 | 华住集团 X 宏稻雅舍
室内设计 | UOWAIN由问设计
设计团队 | 徐家强 黄培磊 谢莉芊 杨景钧
设计时间 | 2019年3月
项目摄影 | 张大齐 、华住集团
由问设计(UOWAIN DESIGN)是一家立足于上海的多元化设计事务所,充满激情与创造力的设计团队致力于空间设计与研究。以专业素养及国际化视野为客户提供最优解决方案与策略。“由问”意为“创造由来学问”。我们主张“不是为了设计而创造设计,而是由空间的本源出发,功能至上为空间的使用者、经营者带来愉悦的舒适,精致的体验并融入前瞻性的思考,重塑空间新生命。”
UOWAIN DESIGN is a diversified design firm based in Shanghai. The passionate and creative design team dedicate into space design and research. The mission is providing customers with the best solutions and strategies with professionalism and international vision. “Uowain” means“creat everything from origin”, we advocate “Not to create design for design, but to start from the origin of space. The function is supreme for the users and operators of the space to bring them pleasure and comfort, the exquisite experience and the forward-thinking just for fitting the new life of the space. ”